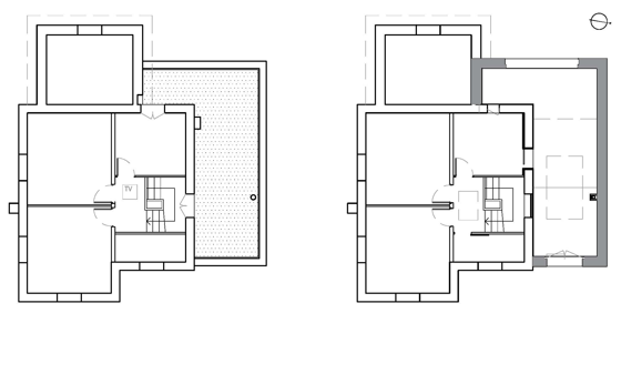
CONTAINER
- Surélévation 27 m² SP
- Mission complète
- Matériaux : Structure bois, couverture zinc pigmento rouge à joint debout

Cette belle meulière de 1920 avait déjà subi deux agrandissements, dont un à RDC laissant une terrasse non accessible attenante au R+1. N’ayant aucune utilité de cette terrasse, les propriétaires ont souhaité récupérer cette surface pour en faire une pièce de vie et donner à la maison une touche contemporaine.L’agrandissement a consisté à recouvrir toute la surface de la terrasse, en prenant appui sur les murs périphériques existants, sans toucher aux toitures et en prenant soin d’impacter le moins possible les pièces intérieures. Seule une ouverture a été créée pour créer le passage entre l’existant et l’extension.Afin de limiter les charges sur les murs périphériques, le choix structurel s’est porté sur une ossature bois avec une couverture et bardage zinc. La couleur « rouge pigmento » de la couverture et du bardage a été choisie car elle est celle qui s’harmonise le mieux avec la couleur de la pierre meulière et de la brique. Les ouvertures des fenêtre et baie vitrée sont orientées Est-Ouest et la lumière zénithale entrant par les deux verrières proches du faîtage en font une pièce spacieuse, bien éclairée et très agréable à vivre.



