MEZZANINE
Extension / Réhabilitation :
Extension 60m² / Réhabilitation 60m²
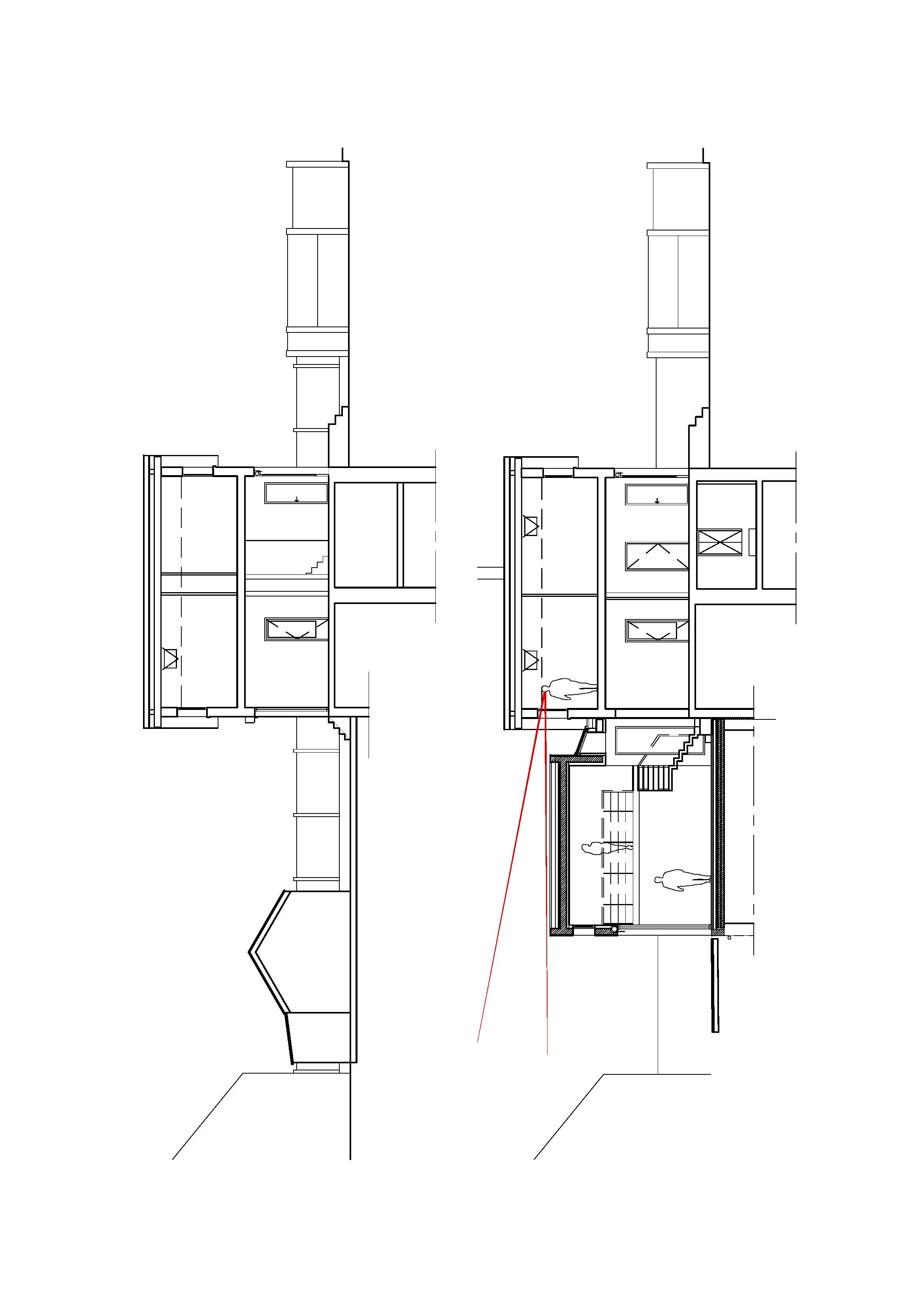
Cette maison des années 1930, construite en mâchefer, a été modifiée au fur et à mesure des changements de propriétaire. Aujourd'hui elle est devenue trop petite pour une famille de quatre personnes avec des enfants devenus grands, la famille souhaitait créer un grand espace de vie et pouvoir profiter du jardin.
Etant donné les matériaux, et le manque de traçabilité de la construction, il était déconseillé de surélever la maison d'un étage, ou de créer trop d'impact dans la maison existante. En revanche, la possibilité qui s’offrait pour cette maison orientée Nord/Sud était de créer un espace de vie orienté au Sud en rez-de-jardin et garder les pièces de nuit côté Nord, dans l'existant. La cuisine se retrouvant au centre de la maison, elle articule l'entrée et distribue les différentes fonctions. Le nouveau volume abrite un séjour en double hauteur, et sur le côté une salle à manger surmontée d'un bureau en mezzanine. Une baie vitrée sur une double hauteur permet de faire entrer la lumière au cœur de la maison, et une verrière vient compléter la luminosité dans la cuisine.




<--Précédent