Le Planning Familial
Dossier de consultation
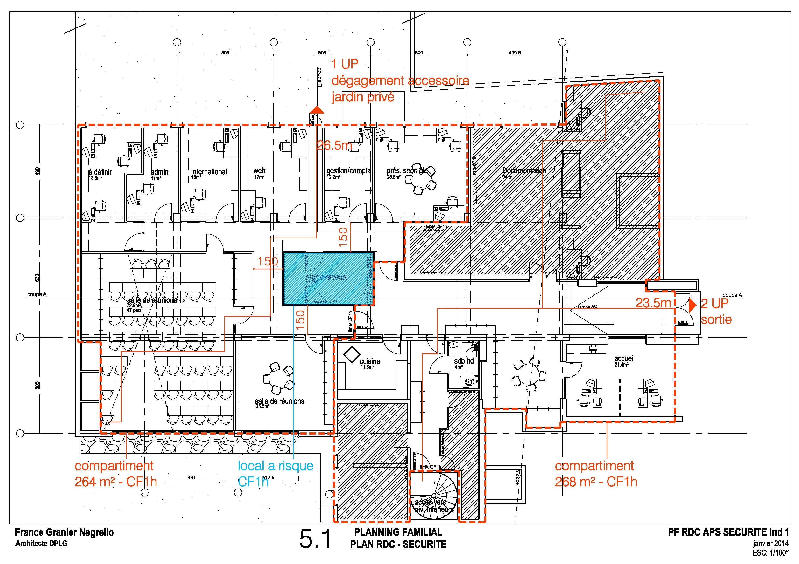
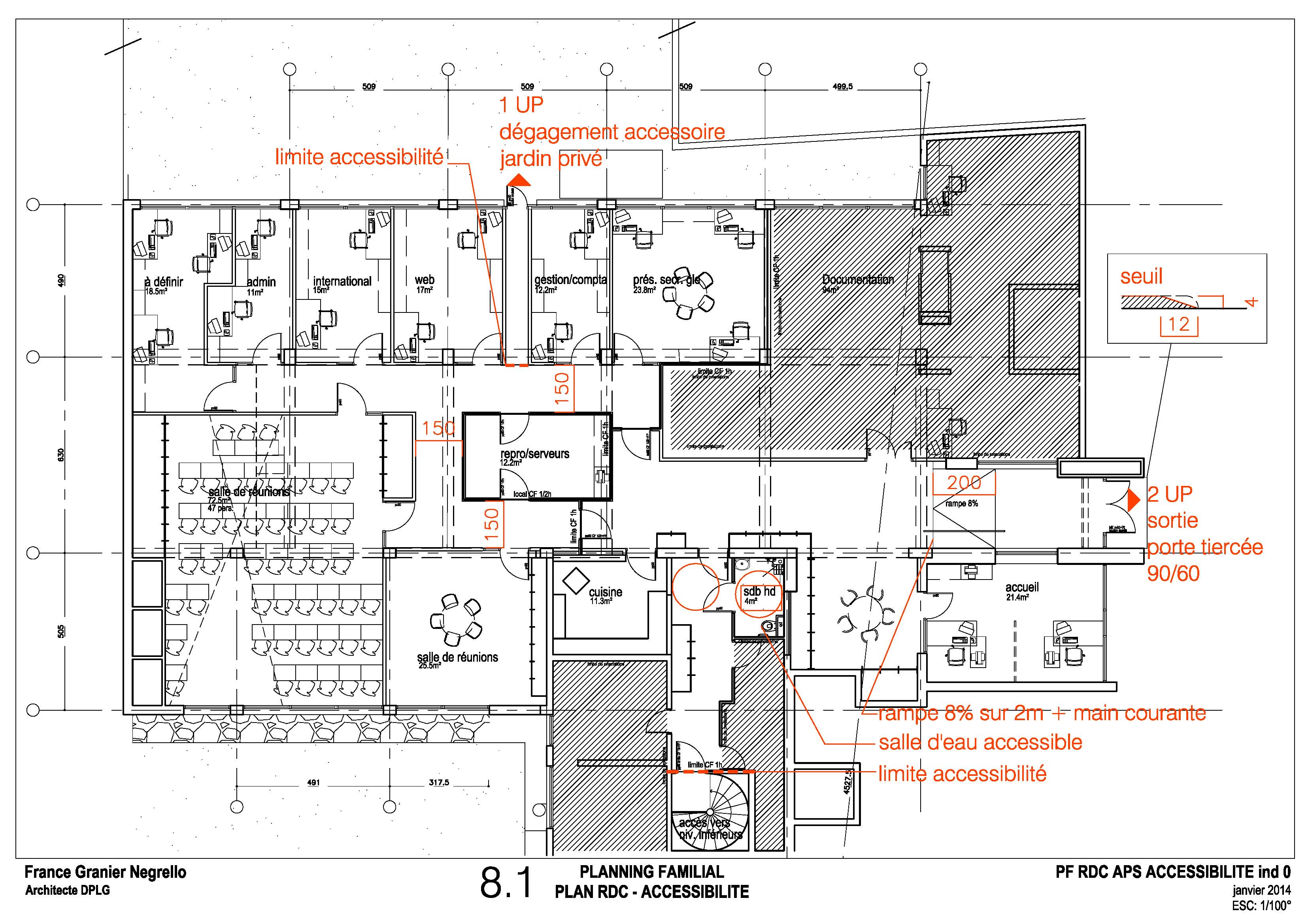
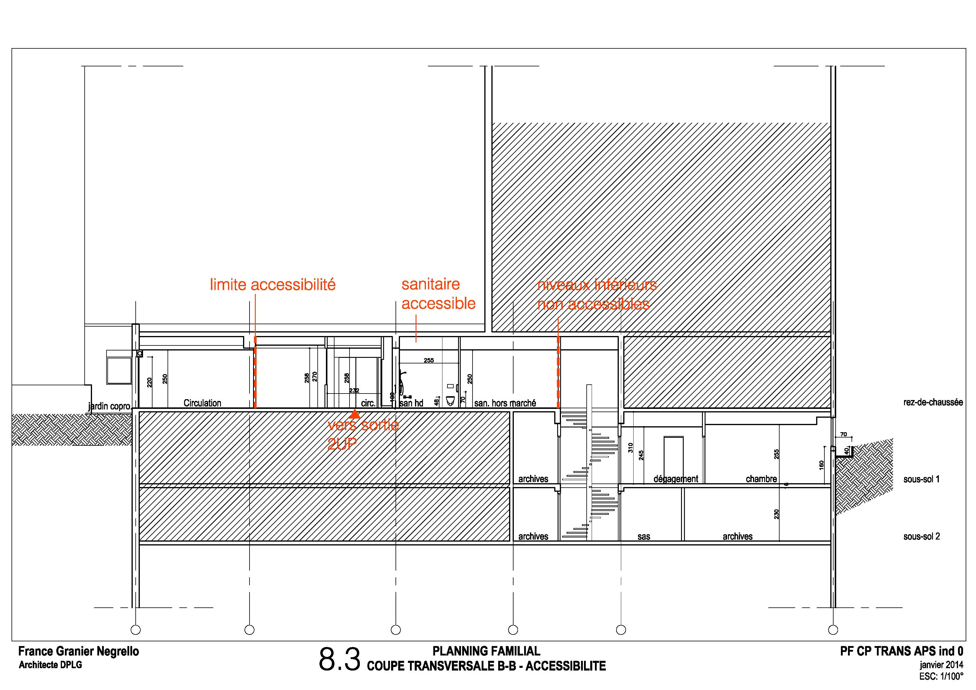
Les locaux du planning familial situés à Paris occupent un rez-de-chaussée et deux sous-sols partiels d'un immeuble d'habitations. La surface représente 390m² au RDC, 100m² au 1er sous-sol et 100m² au 2e sous-sol. Le rez-de-chaussée abrite les bureaux du planning familial et un centre de documentations ouvert au public. Le premier sous-sol reçoit des chambres destinées à héberger le personnel du PF en déplacement. Des archives sont aménagées dans le deuxième sous-sol et partiellement au premier sous-sol. L'établissent doit être reclassé ERP de 5ème catégorie, les locaux doivent être mis en conformité au point de vue sécurité et accessibilité et répondre à un programme fonctionnel du personnel. Il sera donc envisagé de rendre le rez-de-chaussée accessible aux personnes à mobilité réduite et d’isoler les chambres et les archives. Les travaux devront se faire en milieu occupé, ils seront réalisés en 2 phases de travaux car il n'est pas envisageable de fermer l'établissement.
BET : BETHAC / FACEA
SSI : Casso et Associés







